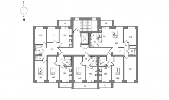
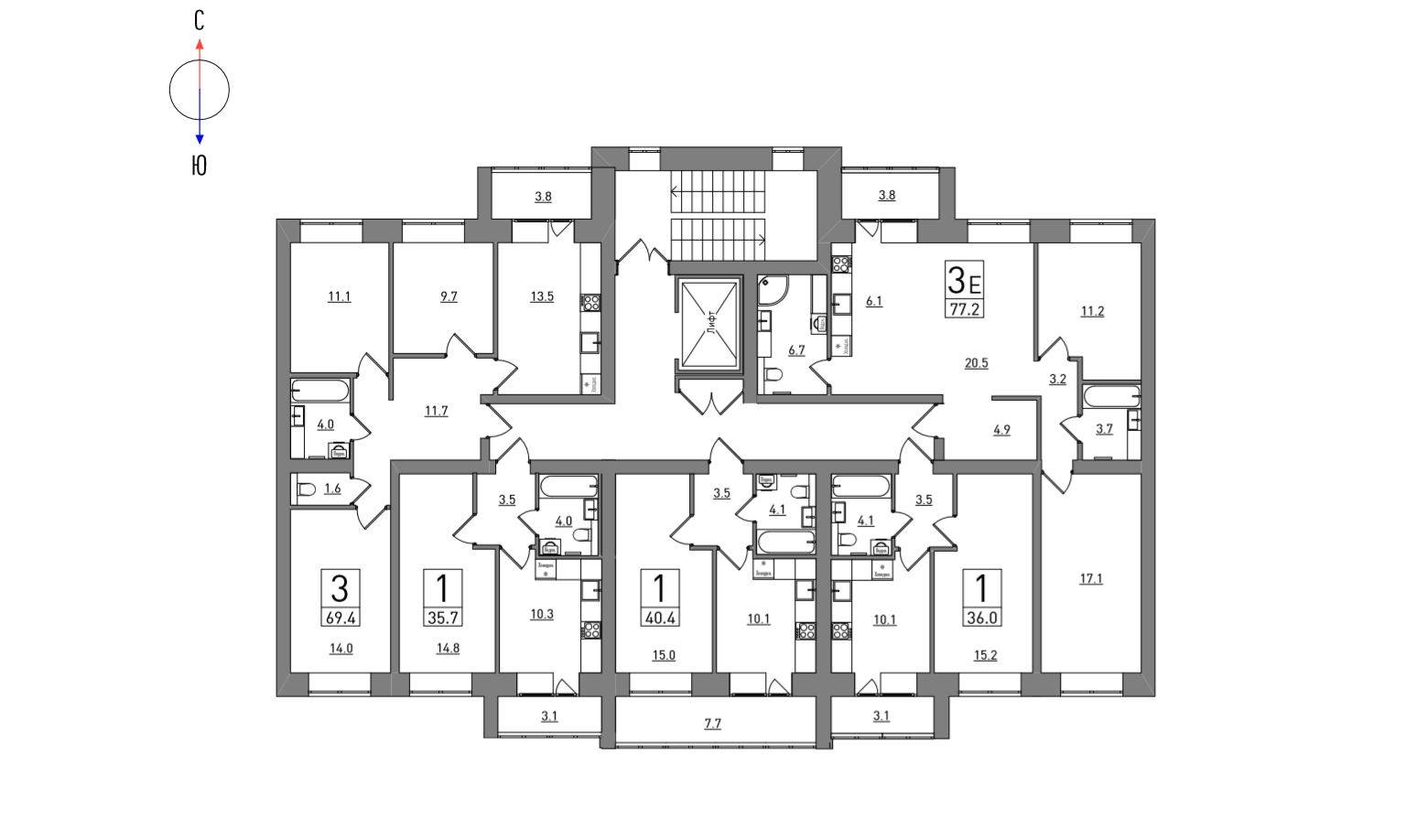
Евро 3-комнатная квартира, 77.2 м²

  • Проект
    LIFE | Лайф
  • Количество квартир
    1
  • Этажи
    6
  • Общая площадь
    77,2 м²
  • Площадь кухни
    6,1 м²
  • Площадь комнат
    48,8 м²
  • Этажность
    9
  • Высота потолков
    2,7 м
  • Адрес
  • Срок сдачи
    III кв. 2027
  • Готовность дома
    35%

О проекте LIFE | Лайф

  • Баланс города и природы
    Баланс города и природы
    Юго-Запад — это узнаваемая кировская тишина во дворе и удобство городской жизни за его пределами. С одного края квартала — новый сквер с детскими комплексами и лавками под кронами, с другого — виды на зелёный массив и быстрый выход на вечерние маршруты. Чуть дальше — Зубаревский лес: летом — прохладные тропы и велосипедные петли, зимой — аккуратные лыжни. Природа здесь не фон, а часть сценария дня. Квартал собран логично: пешеходные связи, тихие дворы, уличные пространства без суеты. Вы выходите из подъезда — и уже в привычном ритме: детская площадка по возрасту, место для спорта, короткая дорожка к скверу. Локация не заставляет выбирать между делами и отдыхом — она подсказывает, как совместить. Жить легко — всё продумано за вас.
  • Жизнь собрана вокруг дома
    Жизнь собрана вокруг дома
    Утро начинается без спешки: две школы и два муниципальных детских сада — в шаговой доступности, дорога до них — короткая и безопасная. На первых этажах и в соседних домах — магазины федеральных сетей, аптеки, новый фитнес-клуб, пункты выдачи. То, что обычно разбивается на десяток поездок, здесь решается одним маршрутом «по пути домой». В LIFE инфраструктура не обещана, а настроена: просто живёте — и используете готовые решения.
  • Архитектура с характером спокойствия
    Архитектура с характером спокойствия
    LIFE | Лайф узнаётся по уравновешенному силуэту, мягкой игре высот и деликатным арочным акцентам. Дома возводятся из кирпича. Оригинальный облик формируется сочетанием облицовок — декоративной штукатурки и вентилируемого фасада с фиброцементными панелями. Такой подход не только эстетичен, но и практичен: обеспечивает дополнительную защиту от перепадов температур и сохраняет аккуратный вид на годы. Цветовая палитра, состоящая из молочно-бежевых, графитовых, песочных и местами шоколадных оттенков, органично сочетается между собой и с ландшафтом двора, поддерживает ритм вертикалей и собирает силуэт дома в цельный, тёплый образ. Кондиционеры аккуратно спрятаны в стильных корзинах в тон фасада, а архитектурная подсветка мягко подчёркивает контуры дома.
  • Ваш островок тишины и уюта
    Ваш островок тишины и уюта
    Двор-парк — это настоящий зелёный оазис. Ландшафтный дизайн с многоуровневыми посадками, кустарниками и цветниками создаёт атмосферу уюта и гармонии. Летом здесь тень от деревьев и яркие краски цветов, осенью — золотой ковёр листвы, а зимой — аккуратные аллеи и украшенные ели. Вечером двор преображается благодаря продуманной системе трёхуровневого освещения: основное гарантирует безопасность, акцентное выделяет дорожки и игровые зоны, а декоративное подчёркивает красоту озеленения.
2 / 5

Преимущества

2 / 5
  • Двор-парк
    Двор без машин станет центром притяжения для всех жителей. Здесь предусмотрена детская площадка, зона для занятий спортом и воркаутом и места для тихого отдыха. Доступ во двор будет только у жителей парк-квартала и управляющей компании. Ваш двор только в вашем распоряжении.
    Двор-парк
  • Прогулки в лесу рядом с ЖК LIFE
    Для ценителей отдыха на свежем воздухе рядом с кварталом расположен Зубаревский лес. Здесь вы всегда найдете место для отдыха и занятий спортом: будь то ежедневная пробежка, воскресный пикник с друзьями или вечерняя прогулка.
    Прогулки в лесу рядом с ЖК LIFE
  • Качественные входные двери
    Обеспечат безопасность и изолируют квартиру от посторонних шумов
    Качественные входные двери
  • Кладовые в доме
    Вы можете освободить пространство квартиры от сезонных вещей, домашних заготовок, зимней резины, строительных материалов, спортивного инвентаря.
    Кладовые в доме

Похожие планировки

Киров, ул. Воровского, д. 161
ksm-kirov.ru
+7 (8332) 511-111
Будни с 8:00 до 18:00
Суббота с 9:00 до 18:00 без обеда
Воскресенье с 10:00 до 14:00 без обеда
Евро 3-комнатная, 77.2 м²
Дорофеева, 20
Документ создан: 20.01.2026
Не является публичной офертой, цена может быть скорректирована.
Информация взята с сайта СЗ «Кировспецмонтаж»
Заказать консультацию
Если у вас есть вопросы или нужна помощь с выбором квартиры, заполните форму и наши специалисты свяжутся с вами в ближайшее время!
Наш менеджер свяжется с вами!