-
ПроектСити Парк
-
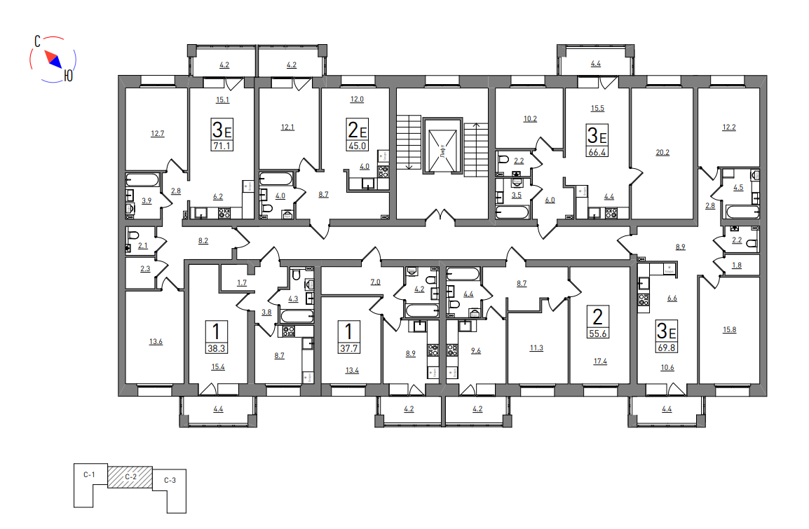
Количество квартир1
-
Этажи3
-
Общая площадь45 м²
-
Площадь кухни4 м²
-
Площадь комнат24,1 м²
-
Этажность6
-
Высота потолков2,7 м
-
Адрес
-
Срок сдачиII кв. 2027
-
Готовность дома9%
-
Дворы в жилом комплексе безопасны: туда нет доступа машинам и посторонним. А на их территории расположены зеленые зоны с цветниками и, уютные зоны отдыха, спортивные и игровые площадки как для активного, так и для спокойного времяпровождения.Закрытый двор -
В каждом подъезде оборудованы колясочные – это не только избавит от необходимости поднимать на свой этаж коляску или велосипед, но и сохранит чистоту на этажах и в квартирах. Кроме того, в колясочных так же, как и подъездах, установлено видеонаблюдение.Колясочные -
В домах установлены тихие, энергоэффективные и просторные лифты, рассчитанные до 1000 кг: в них никогда не тесно ехать большой компанией или перевозить крупногабаритные вещи.Надёжные лифты -
К выбору материалов, из которых возводится дом, нужно подходить с особым вниманием. Кирпич — один из самых популярных материалов, и у него есть множество преимуществ. Кирпичные дома имеют высокий срок службы, обладают устойчивостью к внешним воздействиям и имеют отличные теплоизоляционные свойства.Кирпичные стены -
Неспешные прогулки, утренние пробежки на свежем воздухе или семейные велосипедные прогулки - здесь можно выбрать любой вид досуга на свой вкус, ведь сделать это можно в живописном лесу, расположенном всего в нескольких минутах от дома.Близость леса -
Удобно, когда сезонные вещи не занимают место в квартире, освобождая пространство для хобби, отдыха или игр.Кладовые в доме
Похожие планировки
-
- Приведи друга — получи до 30 000 рублей!
- Квартирный трейд-ин
- Семейная ипотека от 4,5% на весь срок
- +1
2-комнатная, 57 м²
- Проект LIFE | Лайф
- Отделка Квартира с отделкой
- Адрес Дорофеева, 24
- Этаж 11
-
- Приведи друга — получи до 30 000 рублей!
- Квартирный трейд-ин
- Семейная ипотека от 4,5% на весь срок
- +1
2-комнатная, 80.2 м²
- Проект LIFE | Лайф
- Отделка Квартира с отделкой
- Адрес Дорофеева, 24
- Этаж 8-11
-
- Приведи друга — получи до 30 000 рублей!
- Квартирный трейд-ин
- Семейная ипотека от 4,5% на весь срок
- +1
2-комнатная, 57 м²
- Проект LIFE | Лайф
- Отделка Без отделки
- Адрес Дорофеева, 24
- Этаж 12
-
- Приведи друга — получи до 30 000 рублей!
- Квартирный трейд-ин
- Семейная ипотека от 4,5% на весь срок
- +1
2-комнатная, 80.4 м²
- Проект LIFE | Лайф
- Отделка Без отделки
- Адрес Дорофеева, 24
- Этаж 12
Киров, ул. Воровского, д. 161
ksm-kirov.ru
+7 (8332) 511-111
Будни с 8:00 до 18:00
Суббота с 9:00 до 18:00 без обеда
Воскресенье с 10:00 до 14:00 без обеда
Суббота с 9:00 до 18:00 без обеда
Воскресенье с 10:00 до 14:00 без обеда
2-комнатная, 45 м²
Парковая, д.1В
-
Срок сдачиII квартал 2027
-
Площадьот 45 м²
-
Высота2,7 м
-
Этаж(и)3 из 6
-
МатериалКирпич
Смотреть планировку
Отсканируйте QR-код
и посмотрите на ksm-kirov.ru
и посмотрите на ksm-kirov.ru
Документ создан: 10.11.2025
Не является публичной офертой, цена может быть скорректирована.
Информация взята с сайта СЗ «Кировспецмонтаж»
Информация взята с сайта СЗ «Кировспецмонтаж»