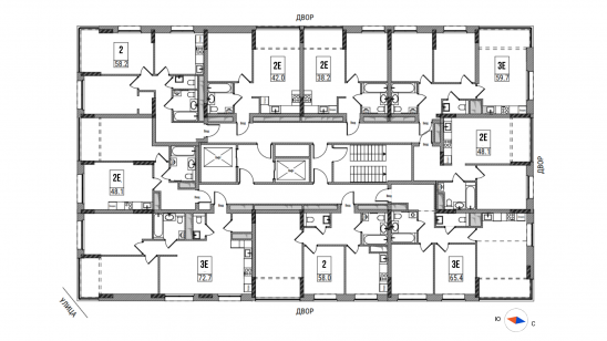
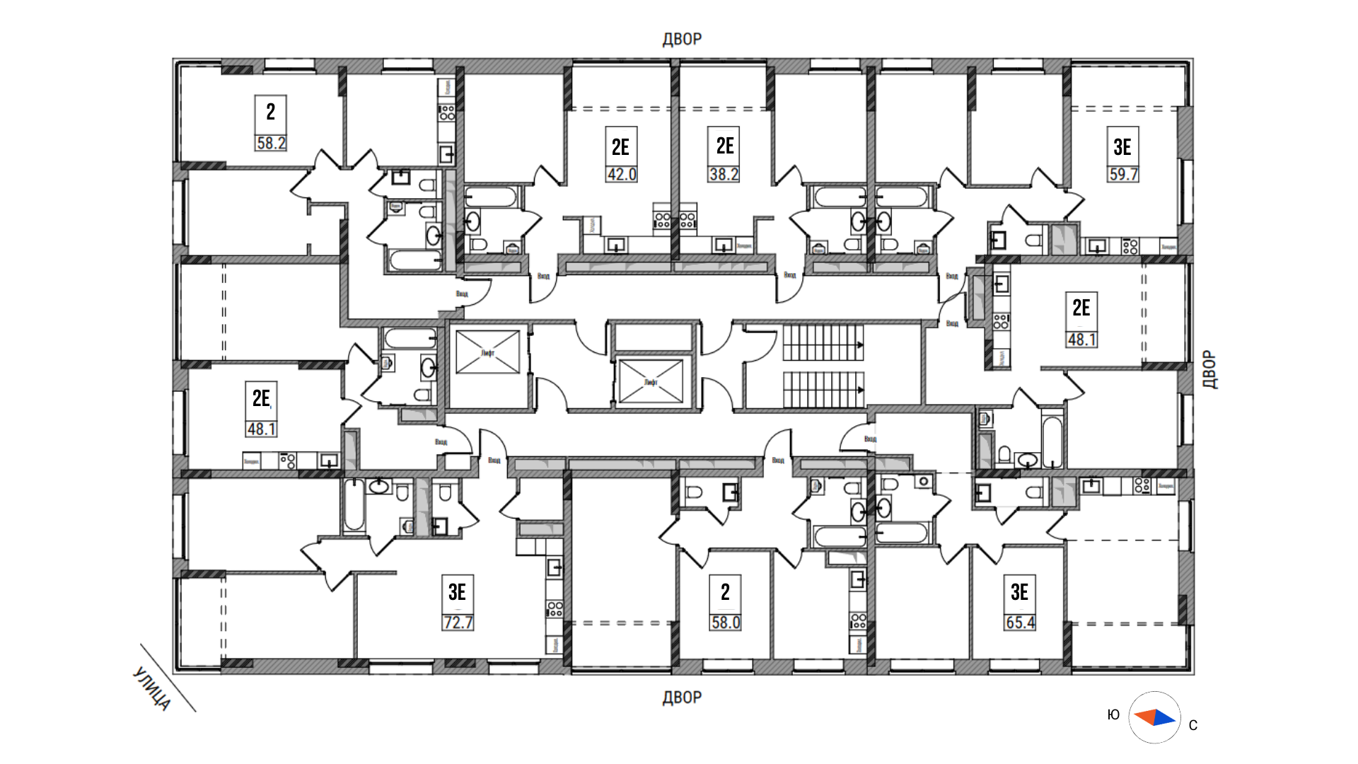
2-комнатная квартира, 58.9 м², №218

1 человек  просматривает
Планировка
  • Проект
    Видный
  • Номер квартиры
    218
  • Отделка
    Без отделки
  • Общая площадь
    58,9 м²
  • Площадь кухни
    10,7 м²
  • Площадь комнат
    32,4 м²
  • Номер квартиры
    218
  • Высота потолков
    2,7 м
  • Этаж/этажность
    10/17
  • Секция
    2
  • Адрес
  • Тип дома
    Монолит
  • Срок сдачи
    3 кв. 2027 г.
  • Готовность дома
    51%

Преимущества

2 / 5
  • Световые акценты правильно подчеркивают разные элементы благоустройства, ландшафта.
    Разноуровневое освещение
  • Сквер Видный
    Рядом с кварталом КСМ благоустраивает одноименный сквер "Видный". Здесь полностью обновлены прогулочные зоны, модернизировано освещение, установлены арт-объекты, малые архитектурные формы: подвесные качели, площадка со сценой и амфитеатром, а также уличные тренажеры.
    Сквер Видный
  • Новый детский сад
    Рядом с жилым комплексом мы строим детский сад по самым современным стандартам
    Новый детский сад
  • Путь от автомобиля до квартиры и обратно без лишней суеты
    Лифт из паркинга на ваш этаж
  • Спортивная площадка
    Спортивная площадка вынесена за пределы двора, поэтому насыщенная спортивная жизнь, не будет мешать играм и не создаст неудобств любителям размеренного отдыха и тишины.
    Спортивная площадка
  • Спортивное поле с зоной тренажёров и игровая площадка для питомцев расположены за пределами двора и парковки. Это позволяет сохранить тишину и спокойствие в жилой зоне.
    Своя площадка для прогулок с питомцами
  • Удобное расположение
    ЖК Видный расположен на Мелькомбинатовском проезде. Это район с развитой инфраструктурой и удобной транспортной развязкой. Здесь все близко: магазины, офисы банков, детский сад, школы, колледж культуры, поликлиника, парк, фитнес-клуб с двумя бассейнами и открытой спортивной зоной, салоны красоты, частные клиники и уютные кафе.
    Удобное расположение
  • Система доступа по номеру автомобиля или радиометке даёт высокий уровень безопасности и свободу от лишних действий.
    Бесключевой доступ в подземный паркинг
  • Транспортная доступность
    Жилой квартал находится в центре, поэтому вам не придется много времени проводить в дороге. Добраться в любую точку города можно всего за полчаса: увезти детей в секции развития, добраться до офиса или крупного торгового центра не составит труда. А если вы собираетесь в отпуск или командировку, то дорога от вашего дома до аэропорта Победилово на машине займет около 28 минут.
    Транспортная доступность
  • На придомовой территории и в общих холлах дома
    Видеонаблюдение

Похожие планировки

Киров, ул. Воровского, д. 161
ksm-kirov.ru
+7 (8332) 511-111
Будни с 8:00 до 18:00
Суббота с 9:00 до 18:00 без обеда
Воскресенье с 10:00 до 14:00 без обеда
2-комнатная, 58.9 м², №218 , Без отделки
Мелькомбинатовский, 3
Документ создан: 20.01.2026
Не является публичной офертой, цена может быть скорректирована.
Информация взята с сайта СЗ «Кировспецмонтаж»
Заказать консультацию
Если у вас есть вопросы или нужна помощь с выбором квартиры, заполните форму и наши специалисты свяжутся с вами в ближайшее время!
Наш менеджер свяжется с вами!